Tel: +44 20 8441 4310

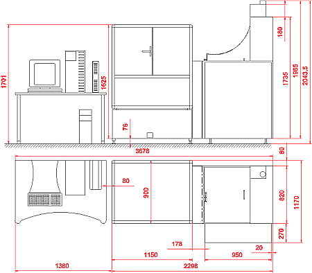
Printer 900 depth x 1150 width x 1705 height

Paper processor 100 m/h and 150 m/h see below:

Click to Download Laserlab 50 PDF - The LASERLAB is a photographic colour laser printer designed as an integrated laboratory, linked to an RA4 paper processor. - The machine offers high performance output: the lasers prints a 50x80 cm. (20"x32") in only 10 seconds. - The computer monitor is calibrated to match the print. - Any image file loaded into the computer is displayed and if necessary, adjusted (in real time) in colour, density and contrast. - This system allows high quality and high productivity without paper waste. - The LASERLAB's high print quality in terms of colour saturation and brightness, together with its high printing speed, make it unsurpassable. - Thanks to its 16 bit per colour DAC (total 48 bit) the print quality has an exceptional tone continuity. - The LASERLAB printing resolution is 254 dpi continuous tone (equivalent to 3000 dpi or more in a dithered system like an ink-jet printer). - Direct connection with 100 m/hr (150 m/hr optional) paper processor. - Paper format minimum 20x20 cm. (8"x8"), maximum 50x80 cm. (20"x32"). - Printable image of any size (even one pixel). - The LASERLAB has the same paper box and cutting group as used in our Videolab. - The LASERLAB is mounted on anti vibration supports. - The paper processor and the fan group are totally separated in order to eliminate any kind of vibration. - The laser group is mounted on a removable deck located under the printing section. - The electronic unit is located at the base of the machine. - The paper is cut to the correct size before exposure, similar to our Videolab machines. - The Paper is transported to the printing area and kept in position by a vacuum inside the exposing chamber (patented). - After the paper is transported to the correct position, the laser exposes the image via a 30,000 rpm rotating mirror located over an air suspended slide moved by a linear motor. - This particular configuration, without contact, minimise any kind of vibrations: maximum print sharpness ! - The exposure time for the maximum size is 10 seconds, plus the small time for transporting the paper into the buffer section. - The laser light is transferred to the slide to the rotating mirror by a special self-focusing fiber optic that assures the absolute stability not only of the spot diameter for the blue, green and red colours but also the exact spot overlapping (convergence) without laser re-calibrations for beam pointing drifts or thermal drifts. - The red, green and blue laser light is modulated at over 6MHz, regulated by motorised variable neutral density filters. - The RGB lasers are merged to form a single beam of light collimated into the fibre optic. - The light at the end of the fiber optic is checked by 3 photo diodes for chromatic balance (maximum black level). - After completing of the exposure the paper is transferred to a buffer section where it will be processed at the maximum speed: 166 cm./min. for a 100 m/h processor or 250 cm./min for a 150 m/h processor. - The next exposure can starts immediately without any dead time: so doubling the productivity ! - The printer is managed by a state of the art personal computer (always in evolution).

LASERLAB Internal View

- The LASERLAB is a complete integrate working environment running under Windows NT with a visual interface based on the Windows standards. - Reads over 40 image formats like: TIFF, JPEG, Targa, BMP, PBM, Macintosh PICT, .PNG, .RAS, .SGI, PhotoCD, (for Postscript* see note), etc. - Open multiple images. - Before printing, the software allows the operator to modify, in real time, luminosity, contrast and gamma for any single colour or for all three colours simultaneously. - Cropping of the images, as in our Videolab, is possible. - All image adjustments and cropping functions are performed using the Mouse Wheel technology. - The software allows remote printing functions. - The software automatically packs images (multiple copies of the same image or different images) in a single sheet with or without markers recognised by automatic cutters. - Complete image dimension management. - Following image adjustments in our software, a very fast PCI board (developed by Polielettronica) located inside the computer, sends the data to an external board that drives the laser modulators. - This has 16 bit of resolution for each colour giving maximum gamma control.

Laserlab Production Rates Per Hour

Paper Processor

8"x 6"

10"x 8"

20"x 24"

20"x 32"

30"x49"

Based on 12 prints on a 20"x32"

Based on 8 prints on a 20"x32"

100 m/h

1872

1248

156

120

70

150 m/h

2495

1664

190

160

-

RA4 Processor attached to the LASERLAB
The processor is available in the 100m/h (standard) models and 150m/h (optional) models. All RA4 models have a microprocessor control with the following characteristics : - Three independent developer time channels (normal, DURATRANS, special jobs) ; - Independent temperature control for developer, bleach and dryer; - Dryer standby low consumption mode; - Independent control for replenishment circulation of all three integration pumps; - Automatic and adjustable speed control; - Quick change from chemical (waterless) to water wash; - Developer, bleach and dryer overheating alarm, developer and bleach tank low level alarm and low level wash heater circuit. - Replenishment-overflow group, has 30 liter tanks for replenishment and 20 liter tanks for overflow. Alarms are incorporated for empty replenishment tanks and full overflow tanks.

Paper Processor Tanks Volume (litres)

Paper Processor

Developer

Bleach

Stabiliser

Replenishment tanks

Overflow tanks

100 m/h

1 x 28

1 x 28

3 x 21

3 x 30

3 x 20

150 m/h

2 x 19

2 x 19

3 x 25

3 x 30

3 x 20

Tel: +44 20 8441 4310

 FAX: +44 20 8449 0317

Leopold Professional Imaging, Colex House, 57 Lancaster Road, New Barnet, Herts,EN4 8AS, England